Propriétés à vendre - Valais

  • 9 month(s)
  • 813 vues

Réf 202621 - CHEMIN DESSUS (Val de Bagnes) 4.5pièces

Chemin dessus, Chemin Dessus, 1927, VS, Réf 202621, Switzerland
CHF 1'800'000.-

Description

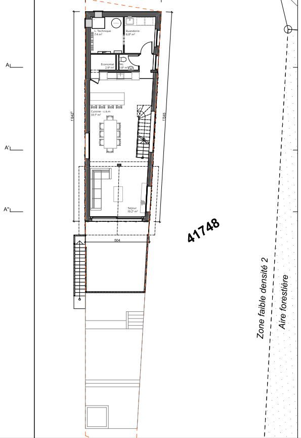
Chalet

À vendre – Projet de villa neuve avec vue panoramique – Chemin-Dessus (Val de Bagnes).

Un endroit absolument incroyable. Un lieu hors du commun.

À Chemin-Dessus, cette villa neuve à construire prend place sur une parcelle d’environ 1’473 m², dont près de 813 m² de forêt privée — un écrin naturel rare, offrant calme absolu, intimité totale et connexion directe avec la nature.

Le projet prévoit une villa d’environ 194 m², répartie sur trois niveaux, avec de généreux espaces extérieurs, terrasse et espace jacuzzi, faisant face à une vue panoramique spectaculaire sur les montagnes.

Un cadre idéal pour se ressourcer, été comme hiver, en pleine nature. Les finitions sont entièrement personnalisables, afin de créer un lieu de vie unique, à votre image. Un bien rare, destiné à celles et ceux qui recherchent l’émotion, la nature et l’exceptionnel.

                                                                      Documents sans valeur contractuelle

Nicolas Bouilliez
nicolas@abimmo.ch

Contacter

 Caractéristiques

 Situation

  Nicolas Bouilliez

  Demande d'informations