Propriétés à vendre - Valais

  • 2 month(s)
  • 1906 vues

26112 - LE LEVRON Chalet 3 étages 6.5 pièces

Route de Déviation, Le Levron, 1942, VS, Réf 26112, Switzerland
CHF 2 360 000

Description

Chalet
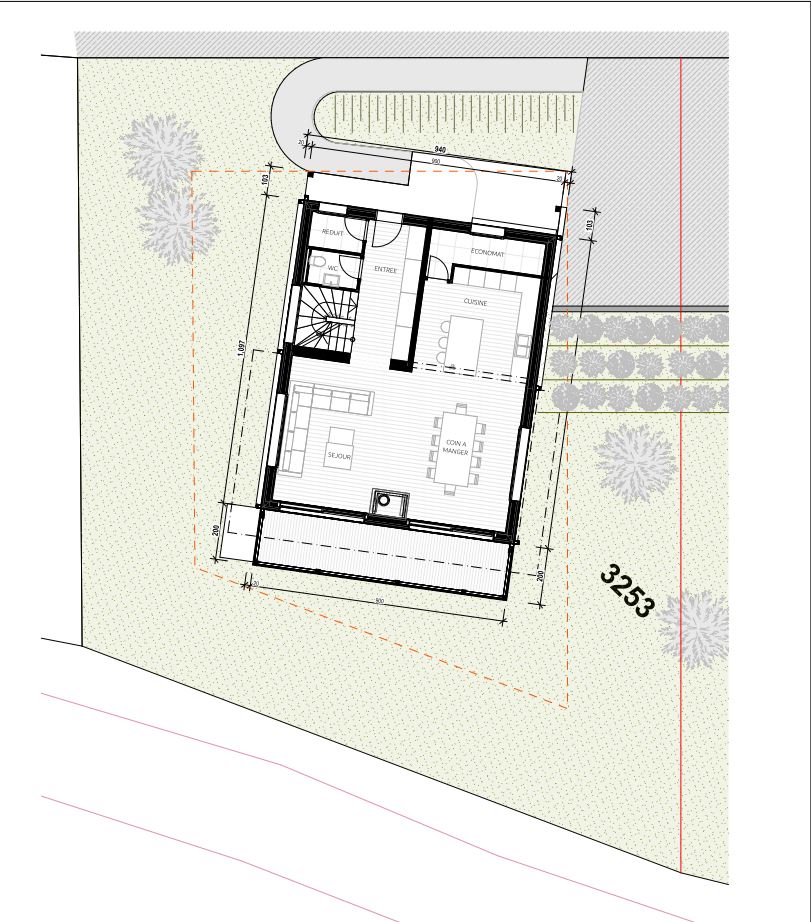
Chalet 6 pièces de 283 m2 de surface de vente sur 3 niveaux

Chalet d’exception – Vue panoramique – Le Levron (Val de Bagnes)

Uniquement en résidence principale (LFAIE)

Situé dans le charmant hameau du Levron, au cœur du Val de Bagnes, ce chalet d’exception bénéficie d’un environnement calme, ensoleillé et d’une vue panoramique imprenable sur les montagnes environnantes.

D’une surface de vente de 283,90 m², ce chalet individuel de 6 pièces réparties sur 3 niveaux est actuellement réalisé hors d’eau et hors d’air (structure et enveloppe entièrement achevées).

Il offre ainsi au futur acquéreur une liberté totale dans le choix des finitions, permettant de concevoir un intérieur entièrement personnalisé : agencements, matériaux, cuisines, salles de bains, sols et équipements techniques, selon ses envies et son mode de vie.

Caractéristiques principales :

Surface de vente : 283,90 m²

Chalet individuel sur 3 niveaux Réalisé hors d’eau / hors d’air

Finitions entièrement au gré de l’acheteur

Architecture alpine contemporaine

Vue panoramique exceptionnelle

Environnement paisible et ensoleillé

Destination exclusive en résidence principale

Ce projet représente une opportunité rare d’acquérir un chalet neuf à personnaliser dans l’un des secteurs les plus authentiques et recherchés du Val de Bagnes.

Prix de vente :

CHF 1’360’000.– dans l’état (hors d’eau / hors d’air)

CHF 2’360’000.– avec finitions réalisées au gré de l’acheteur

Dossier complet et informations complémentaires sur demande.

 

Documents sans valeur contractuelle

Nicolas Bouilliez
nicolas@abimmo.ch

Contacter

 Caractéristiques

Information de base

Chambre(s) à coucher
5
Salle(s) de bain
4
Surface au sol
280.00 m²

Place de parc

Place(s) extérieure(s)
3

 Situation

 Vidéo

https://youtu.be/PdmYfTypqGc

  Nicolas Bouilliez

  Demande d'informations